1. pl
  2. en
  3. no

Klient: Lyngenbygg & Eiendom AS,

 

Data: 12.2018,

 

Lokalizacja: Tromsø, Norwegia,

 

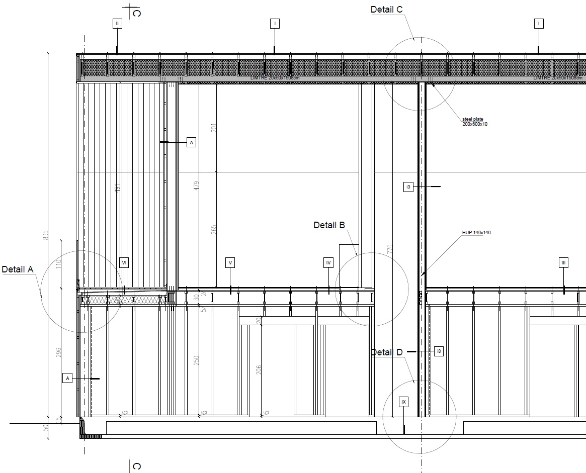
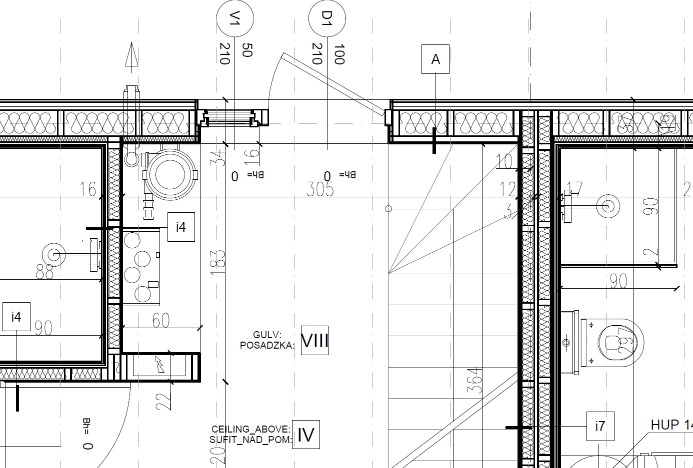
Zakres: obliczenia statyczne, projekt wykonawczy konstrukcji drewniano-stalowej.

 

Budynki mieszkalne w zabudowie bliźniaczej

05 czerwca 2019

Powrót do  realizacji

projekt budowlany Tychy

KONTAKT

mgr inż. Wojciech Ficek
+48 503722933

+47 48643602

support@proconstruo.com

created with webwave cms